Skip To Content

2 Berkley Ln

Bedminster Twp., NJ 07921
  • $749,000
  • STATUS: Active Under Contract
  • ON SITE: 67 Days
  • MLS #: 3996524
UPDATED: 45 min ago
$749,000
  • 2
    BEDS
  • N/A
    ACRES
  • 2
    BATHS
  • 2
    1/2 BATHS
Neighborhood:
Type:
Townhouse
Built:
1986
County:

School Information

Elementary School:
Middle School:
High School:

Description

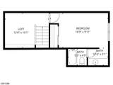
Welcome to this beautifully appointed 2 bedroom, 2.2 bath end-unit townhome in the highly desirable Knollcrest community of The Hills. The first-floor primary suite offers convenience and comfort, complete with two large closets and ensuite bath featuring a soaking tub and separate stall shower. The sunken living room impresses with vaulted ceiling, skylights, abundant natural light, a gas fireplace, and direct access to a private deck overlooking serene surroundings. The main level also includes a formal dining room, eat-in kitchen with deck, a cozy den with parquet flooring and powder room. Upstairs, a spacious loft ideal for a home office or sitting area leads to a large bedroom with dressing area and full bath. The finished lower level is a standout feature, offering incredible versatility and space for today's lifestyle. It includes a media room that easily converts to a third bedroom, a large recreation room, a half bath with room to expand, workshop, exercise area and laundry room with newer washer & dryer plus a newer Rheem furnace ('22). Walk-out to a covered patio for seamless indoor-outdoor living. Additional highlights include a two-car attached garage, abundant storage, and access to resort-style amenities, private neighborhood pool, scenic paths, and beautifully maintained grounds all in a tranquil setting just minutes from shopping, dining, and major transportation. This exceptional home combines luxury, comfort, and flexibility in a premier location.

Monthly Payment Calculator



Garden State MLS logo © 2026 Garden State Multiple Listing Service, LLC. All rights reserved. IDX information is provided exclusively for consumers' personal, non-commercial use and may not be used for any purpose other than to identify prospective properties consumers may be interested in purchasing. Information is deemed reliable but is not guaranteed accurate by the MLS or Pina Nazario, Coldwell Banker Residential Brokerage. Notice: The dissemination of listings on this website does not constitute the consent required by N.J.A.C. 11:5.6.1 (n) for the advertisement of listings exclusively for sale by another broker. Any such consent must be obtained in writing from the listing broker.The data relating to real estate for sale or lease on this web site comes in part from GSMLS. Real estate listings held by brokerage firms other than Pina Nazario, Coldwell Banker Residential Brokerage are marked with the GSMLS logo or an abbreviated logo and detailed information about them includes the name of the listing broker. Data last updated 2026-01-13T10:48:45.557.
www.pickpina.com/homes/169673700
Print Image

2 Berkley Ln Bedminster Twp., NJ 07921

  • Price: $749,000
  • Status: Active Under Contract
  • On Site: 67 Days
  • Updated: 45 min ago
  • MLS #: 3996524
2
Beds
2
Baths
2
½ Baths
N/A
Acres
1986
Built
Neighborhood:
Knollcrest
County:
Somerset
Area:
Bedminster Twp.
Elementary School:
Bedminster
Middle School:
Bedminster
High School:
Bernards
Property Description
Welcome to this beautifully appointed 2 bedroom, 2.2 bath end-unit townhome in the highly desirable Knollcrest community of The Hills. The first-floor primary suite offers convenience and comfort, complete with two large closets and ensuite bath featuring a soaking tub and separate stall shower. The sunken living room impresses with vaulted ceiling, skylights, abundant natural light, a gas fireplace, and direct access to a private deck overlooking serene surroundings. The main level also includes a formal dining room, eat-in kitchen with deck, a cozy den with parquet flooring and powder room. Upstairs, a spacious loft ideal for a home office or sitting area leads to a large bedroom with dressing area and full bath. The finished lower level is a standout feature, offering incredible versatility and space for today's lifestyle. It includes a media room that easily converts to a third bedroom, a large recreation room, a half bath with room to expand, workshop, exercise area and laundry room with newer washer & dryer plus a newer Rheem furnace ('22). Walk-out to a covered patio for seamless indoor-outdoor living. Additional highlights include a two-car attached garage, abundant storage, and access to resort-style amenities, private neighborhood pool, scenic paths, and beautifully maintained grounds all in a tranquil setting just minutes from shopping, dining, and major transportation. This exceptional home combines luxury, comfort, and flexibility in a premier location.
Exterior Features

Approximate Lot Size 0 Color Of Building Grey/Stone Exterior Description StoneWood Exterior Features Deck Garage Description AttachedDoorOpnrInEntrnc Lot Description CornerLevel Lot Number Of Parking Spaces 2 Parking Driveway Description 2 Car WidthAdditional ParkingBlacktop Pool Yes Pool Description Association Pool Primary Style Townhouse-End Unit Roof Description Composition Shingle Style Townhouse-End UnitMulti Floor Unit

Interior Features

Appliances DishwasherDryerMicrowave OvenRange/Oven-ElectricRefrigeratorWasher Association Fee Includes Maintenance-Common AreaSnow RemovalTrash Collection Basement Yes Basement Description FinishedFullWalkout Basement Level Rooms Bath(s) OtherLaundry RoomMedia RoomRec RoomStorage RoomUtility RoomWalkout Bedroom1 Dimensions 16x13 Bedroom1 Level First Bedroom2 Dimensions 15x11 Bedroom2 Level Second Cooling Central Air Den Dimensions 12x11 Den Level First Dining Area Formal Dining Room Dining Room Dimensions 17x11 Dining Room Level First Fireplace Description Gas FireplaceLiving Room Flooring Parquet-SomeTileWood Heating Forced Hot Air Interior Features CODetectCeilCathFireExtgSkylightSmokeDetSoakTubStallShwTubShowr Kitchen Area Eat-In Kitchen Kitchen Dimensions 12x11 Kitchen Level First Level1 Rooms 1 BedroomBath(s) OtherDenDining RoomFoyerKitchenLiving Room Level2 Rooms 1 BedroomBath(s) OtherLoft Living Room Dimensions 17x13 Living Room Level First Master Bath Features Soaking TubStall Shower Master Bedroom Description 1st FloorFull Bath Number Of Fireplaces 1 Number Of Rooms 9 Other Room1 Loft Other Room1 Dimensions 11x9 Other Room1 Level Second Other Room2 Media Room Other Room2 Dimensions 14x13 Other Room2 Level Basement Other Room3 Rec Room Other Room3 Dimensions 31x16 Other Room3 Level Basement Pets Allowed Yes

Property Features

Assessment Total 778800 Association Fee 695 Association Fee Frequency Monthly Block Identifier 59.08 Building Assessment 427400 Community Living Yes Complex Amenities Club HouseExercise RoomJogging/Biking PathPlaygroundPool-OutdoorTennis Courts Easement Unknown Farm Assessment No Fha Age Restricted No Fuel Type Gas-Natural Handicap Modified No Home Warranty No In Law Suite No Land Assessment 351400 Services Cable TV Available Sewer Public Sewer Sub Property Type Condo/Coop/Townhouse Tax Amount 9170 Tax Rate Amount 1.270 Tax Year 2024 Utilities All UndergroundElectricGas-Natural Water Public Water Year Built Description Approximate Zoning Residential

Listing information © 2026 Garden State Multiple Listing Service,LLC.
Listing provided courtesy of COLDWELL BANKER REALTY: 908-581-4830.


Garden State MLS logo © 2026 Garden State Multiple Listing Service, LLC. All rights reserved. IDX information is provided exclusively for consumers' personal, non-commercial use and may not be used for any purpose other than to identify prospective properties consumers may be interested in purchasing. Information is deemed reliable but is not guaranteed accurate by the MLS or Pina Nazario, Coldwell Banker Residential Brokerage. Notice: The dissemination of listings on this website does not constitute the consent required by N.J.A.C. 11:5.6.1 (n) for the advertisement of listings exclusively for sale by another broker. Any such consent must be obtained in writing from the listing broker.The data relating to real estate for sale or lease on this web site comes in part from GSMLS. Real estate listings held by brokerage firms other than Pina Nazario, Coldwell Banker Residential Brokerage are marked with the GSMLS logo or an abbreviated logo and detailed information about them includes the name of the listing broker. Data last updated 2026-01-13T10:48:45.557.
 
https://bt-photos.global.ssl.fastly.net/gsmls/orig_boomver_1_3996524-2.jpg https://bt-photos.global.ssl.fastly.net/gsmls/orig_boomver_1_3996524-2.jpg https://bt-photos.global.ssl.fastly.net/gsmls/orig_boomver_1_3996524-2.jpg
Logo
Pina Nazario, Coldwell Banker Residential Brokerage
789 Clifton Avenue
Clifton NJ, 07013